Popis lokality MPP - 375 / Hostavice - 2025
Anketa
Lokalita Hostavice je vymezena na základě převažujícího společného charakteru plochy, zejména typu zástavby a principu prostorového uspořádání struktury. Lokalita leží na zvlněném terénu nedaleko toku Hostavického potoka, Rokytky a Svépravického potoka, poblíž přírodního parku Klánovice-Čihadla.
Zastavitelnost: zastavitelná stavební
Typ struktury: struktura zahradního města
Využití: zastavitelná obytná
Stabilita: stabilizovaná
CÍLOVÝ CHARAKTER LOKALITY
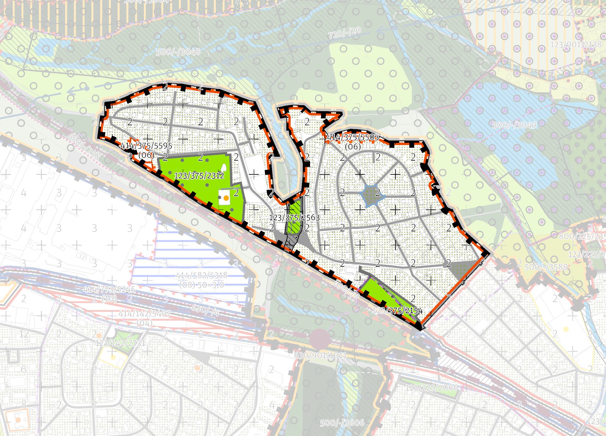
Jádro zástavby tvoří původní vesnice, která se rozvíjela podél ulice Pilské a Vidlák, které leží ve stope někdejších cest a návsi. Podél rostlého vesnického jádra postupně vznikala zástavba individuálních rodinných domu a do 50. let byla dostavena většina západní části lokality a zastaveno území mezi ulicemi Vidlák a Osetá. Východní část lokality byla na jihu zastavena v 70. letech 20. století, severovýchodní část lokality s komponovanou strukturou kolem náměstí Zdenky Braunerové byla zastavena s radovými domy na počátku 21. století. Historie lokality je úzce spojena s rozvojem železniční trati na Kolín a rozvojem přilehlých Dolních Počernic, s nimiž lokalita sousedí na jihovýchodě. Sít veřejných prostranství je pravidelná, místy ovlivněná terénem. Zástavbu lokality tvoři především rodinné domy a vily v zahradách, na severovýchodě radové domky. Dominantou je bývalý zámek.
Dotvořit a posilovat cílový charakter zastavitelné, stabilizované, obytné lokality Hostavice se strukturou zahradního města. Lokalita je součástí krajiny vymezené v ZÚR s názvem Krajina Úvalské plošiny. .
Lokalita Hostavice je vymezena jako lokalita zahradního města. V lokalitě je nutné chránit dochovaný charakter jádra původního historického sídla v okolí ulice Osetá. Cílem navržených regulativu je zachování prostorového uspořádání, rozvíjení prostupné sítě veřejných prostranství s centrálním prostorem náměstí Zdenky Braunerové, zachování homogenního výškového uspořádání zástavby s dominantou bývalého zámku a posílení propojenosti skrz Park u nádraží Hostavice.
» Přejít na článek Popis lokality MPP - 375 / Hostavice - 2025 na webu https://plan.praha.eu/.
Ke stažení:
Popis lokality MPP – 375 / Hostavice, 4 MB;
Odůvodnění pro lokalitu – 375 / Hostavice, 346 kB;
Lokalita MPP – 375 / Hostavice, 583 kB
Ke stažení: Popis lokalit upraveného Metropolitního plánu - Praha 14 (rok 2025)
Metropolitní plán je územní plán hlavního města Prahy. Územní plán určuje, jak se bude město v následujících deseti až dvaceti letech rozvíjet, kde se smí a nesmí stavět apod.
Metropolitní plán rozděluje území hlavního města na více než 700 lokalit, každá spadá do jednoho ze 13 typů zastavitelných území (mezi nimi je například historická část města, bloková struktura či průmyslové areály). Pokud má lokalita v plánu písmeno "Z", znamená to, že je zastavitelná. Případná nová zástavba však musí respektovat charakter lokality. Každá lokalita dále spadá do jednoho ze čtyř způsobů využití - obytný, rekreační, produkční nebo přírodní. Plán tak určuje, jaká činnost zde může a nemůže probíhat.
Výstavbu v jednotlivých lokalitách bude nově omezovat výšková regulace, která jasně určí, jaká bude maximální povolená výška budov. Ta vychází z výšky stávající zástavby.
- Jak připomínkovat Metropolitní plán, 2 MB
- Metropolitní plán - Legenda - Členění území, , 166 kB
- Metropolitní plán - Legenda - Infrastruktura, Doprava, 163 kB
- Metropolitní plán - Legenda - Energie a kódy prvků, 137 kB
- Návod ke čtení krycích listů odůvodnění, 1 MB
- Návod ke čtení krycích listů závazných regulativů, 3 MB
- Popis lokality MPP - 307 / Nad Kyjským Rybníkem, 4 MB
- Odůvodnění pro lokalitu 307 / Nad Kyjským Rybníkem, 344 kB, 344 kB
- Popis lokality MPP - 202 / Staré Kyje, 4 MB
- Odůvodnění pro lokalitu - 202 / Staré Kyje, 347 kB
- Popis lokality 203 / Aloisov, 4 MB
- Odůvodnění pro lokalitu - 203 / Aloisov, 344 kB
- Popis lokality - 204 / Hloubětín, 4 MB
- Odůvodnění pro lokalitu 204 / Hloubětín, 345 kB
- Popis lokality MPP - 502 / Sídliště Lehovec, 4 MB
- Odůvodnění pro lokalitu - 502 / Sídliště Lehovec, 345 kB
- Popis lokality MPP - 503 / Sídliště Černý Most, 1 MB
- Odůvodnění pro lokalitu - 503 / Sídliště Černý Most, 347 kB
- Popis lokality MPP - 512 / Sídliště Hloubětín, 3 MB
- Odůvodnění pro lokalitu - 512 / Sídliště Hloubětín, 345 kB
- Popis lokality MPP - 308 / Rajská zahrada, 3 MB
- Odůvodnění pro lokalitu - 308 / Rajská zahrada, 344 kB
- Odůvodnění pro lokalitu - 306 / Kyje, 347 kB
- Popis lokality - 306 / Kyje, 3 MB
- Popis lokality - 142 / Jahodnice, 3 MB
- Odůvodnění pro lokalitu - 142 / Jahodnice, 348 kB
- Popis lokality MPP - 375 / Hostavice, 4 MB
- Odůvodnění pro lokalitu - 375 / Hostavice, 346 kB
- Popis lokality MPP - 143 / Hutě, 1 MB
- Odůvodnění pro lokalitu - 143 / Hutě, 357 kB
- Podmíněnost pro lokalitu - 143 / Hutě, 3 MB
- Popis lokality MPP – 580 / Malešická průmyslová oblast, 1 MB
- Odůvodnění pro lokalitu - 580 / Malešická průmyslová oblast, 351 kB
- Podmíněnost pro lokalitu - 580 / Malešická průmyslová oblast, 842 kB
- Popis lokality MPP – 582 / Za Kyjemi, 3 MB
- Odůvodnění pro lokalitu - 582 / Za Kyjemi, 345 kB
- Popis lokality MPP – 697 / Areály Černý Most, 3 MB
- Odůvodnění pro lokalitu - 697 / Areály Černý Most, 346 kB
- Popis lokality MPP – 688 / Jahodnice rekreace, 3 MB
- Odůvodnění pro lokalitu - 688 / Jahodnice rekreace, 342 kB
- Popis lokality MPP – 722 / Kyjské skleníky, 3 MB
- Odůvodnění pro lokalitu - 722 / Kyjské skleníky, 342 kB
- Popis lokality MPP – 824 / Centrální park Černý most, 3 MB
- Odůvodnění pro lokalitu - 824 / Centrální park Černý most, 284 kB
- Popis lokality MPP – 850 / Údolí Rokytky, 953 kB
- Odůvodnění pro lokalitu - 850 / Údolí Rokytky, 286 kB
- Popis lokality MPP – 881 / Smetanka, 1 MB
- Odůvodnění pro lokalitu - 881 / Smetanka, 341 kB
- Popis lokality MPP – 901 / Kyje – Horní Počernice, 2 MB
- Odůvodnění pro lokalitu - 901 / Kyje – Horní Počernice, 344 kB
- Popis lokality MPP – 944 / Dolní Počernice – Horní Měcholupy, 2 MB
- Odůvodnění pro lokalitu - 944 / Dolní Počernice – Horní Měcholupy, 348 kB
- Popis lokality MPP – 958 / Pražský zlom, 1 MB
- Odůvodnění pro lokalitu - 958 / Pražský zlom, 343 kB
Metropolitní plán 2025 - PRAHA
Pražský Institut plánování a rozvoje (IPR) předal magistrátu návrh Metropolitního plánu. Dokument bude možné 3. 12. 2025 připomínkovat. Doporučený termín pro podání připomínek je 20. 11. 2025.
Zde je seznam významných lokalit, kterých se Metropolitní plán na území Prahy 14 týká.
Diskuzní fórum
Zatím tu není žádný diskuzní příspěvek.
